Project specification
Mid-Rise Apartment Building
Status
Validated Technical Delivery

Scope of work
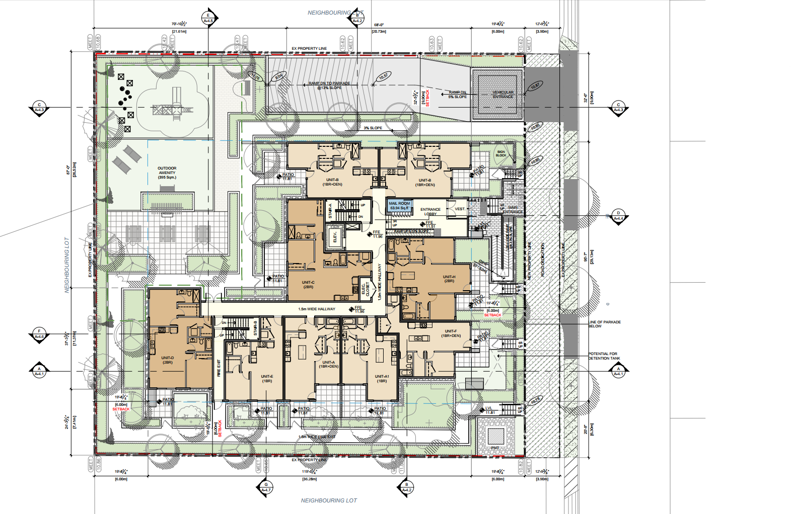
As a specialized production partner, we managed the technical delivery of the permit set for this mid-rise residential development in Vancouver. Our team transitioned design schematics into high-precision, construction-ready documentation, ensuring strict adherence to municipal standards and project-specific CAD protocols. We developed a comprehensive drawing package, including detailed site layouts, fire access plans, and complex basement logistics, while maintaining rigorous cross-reference coordination across all floor plans, sections, and elevations. By providing scalable technical capacity and high-accuracy drafting, we ensured the project met all regulatory requirements for permit submission, allowing the lead architects to focus on design evolution while we secured the project’s documentation integrity and delivery timeline.
Category
Permit Set
Discipline
VDC / BIM
